kontektum
architektur

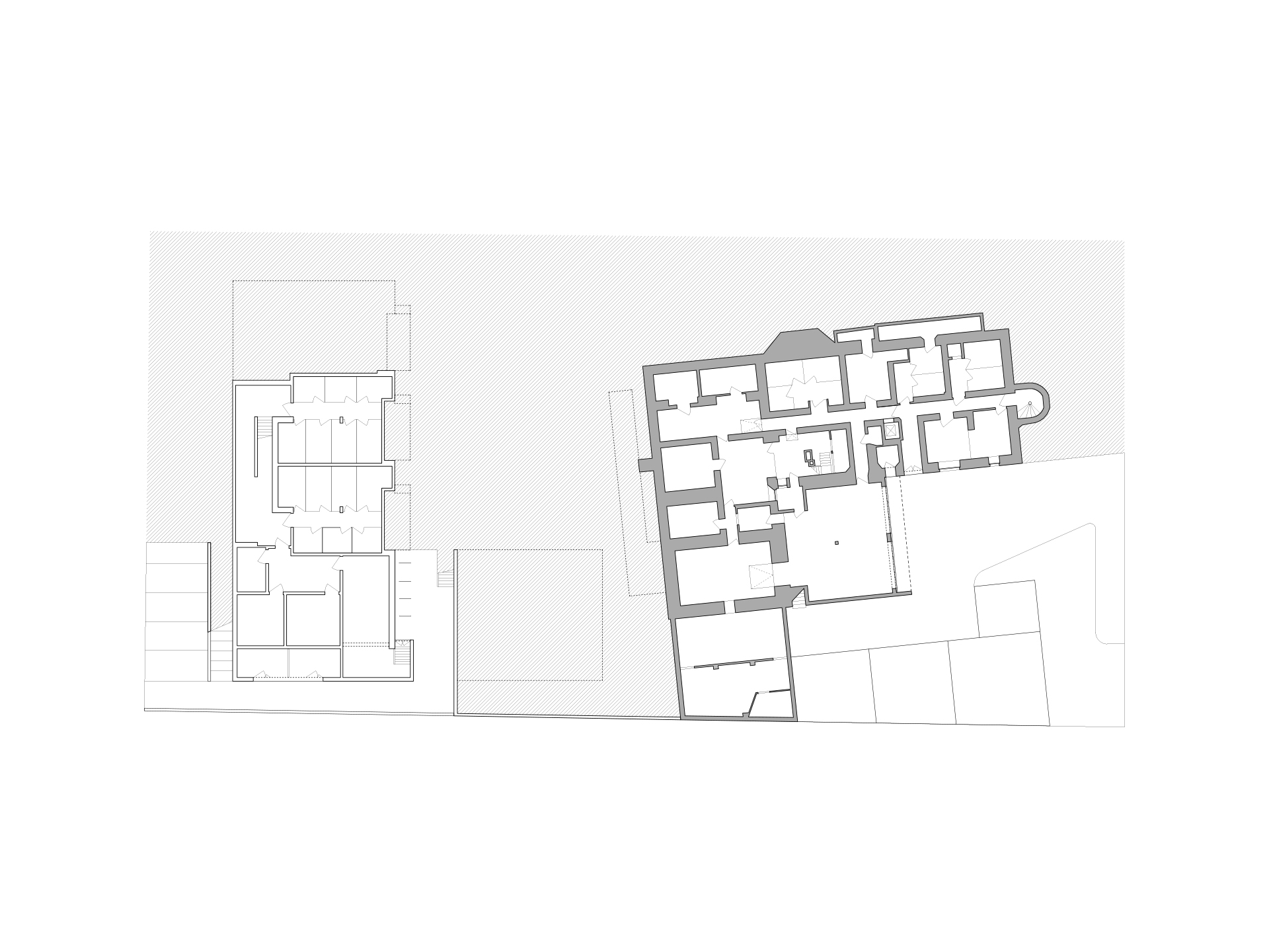
Ort: Mosbach-Neckarelz
Bauherr: privat
Status: Im Bau
Projektart: Neubau
Nutzung: Wohnungsbau
Größe: 2.215 qm
Zeitraum: seit 2022
Visualisierung: Lion Schreiber
Fotos: Ina Reinecke

In direkter Nachbarschaft der denkmalgeschützten Klingenburg entstehen ingesamt zwölf Wohnungen in einem Mehrfamilien- und zwei Wohnungen in einem Doppelhaus. Die beiden neuen Häuser bilden zusammen mit der im Bestand vorhandenen und 2014 bereits zu einem Wohnhaus umgebauten Klingenburg und dem ehemaligen Postgebäude an der Bahnhofstraße ein Ensemble am Ortseingang von Mosbach-Neckarelz. In der Ausformulierung ihrer Fassaden und Dächer nehmen die beiden Häuser die wesentlichen Elemente der umliegenden Bebauung auf. Die Sockelzonen aus rot durchgefärbtem gestocktem Beton stellen den Bezug zum rötlichen Natursteinmauerwerk der benachbarten Klingenburg her. Beide Häuser werden mit einem monolithischen Mauerwerk und Dachkonstruktionen in Holzbauweise errichtet.